电力安装涉及11个清单,其中电力干线电缆是按照长度计算,根据安装方式和铺设要求,可以利用CAD快速看图【连续测量】功能计算电缆的长度,非常方便。
一、建筑内配管配线
电缆安装(编码:030408)共11个清单项,分别为电缆、电缆保护管、电缆槽盒、铺砂、盖保护板、电缆头、防火设置、电缆分支箱。
1.电缆
工程量计算:按设计图示尺寸以长度计算,以“m”为计量单位。
项目特征:名称,型号,规格,材质,敷设方式、部位,电压等级,地形等。
工作内容:电缆敷设,揭盖板。

2.电缆保护管
工程量计算:按设计图示尺寸以单线长度计算,以“m”为计量单位。
项目特征:名称,材质,规格,敷设方式等。
工作内容:保护管敷设。

3.电缆槽盒
工程量计算:按设计图示尺寸以长度计算,以“m”为计量单位。
项目特征:名称,材质,型号,规格。
工作内容:槽盒安装。

4.电缆头
工程量计算:按设计图示数量计算,以“个”为计量单位。
项目特征:名称,型号,规格,材质、类型,安装部位/方式,电力电缆头还需给出电压等级。
工作内容:电缆头制作,电缆头安装,接地等。

二、电缆敷设的预留长度

三、实例分析
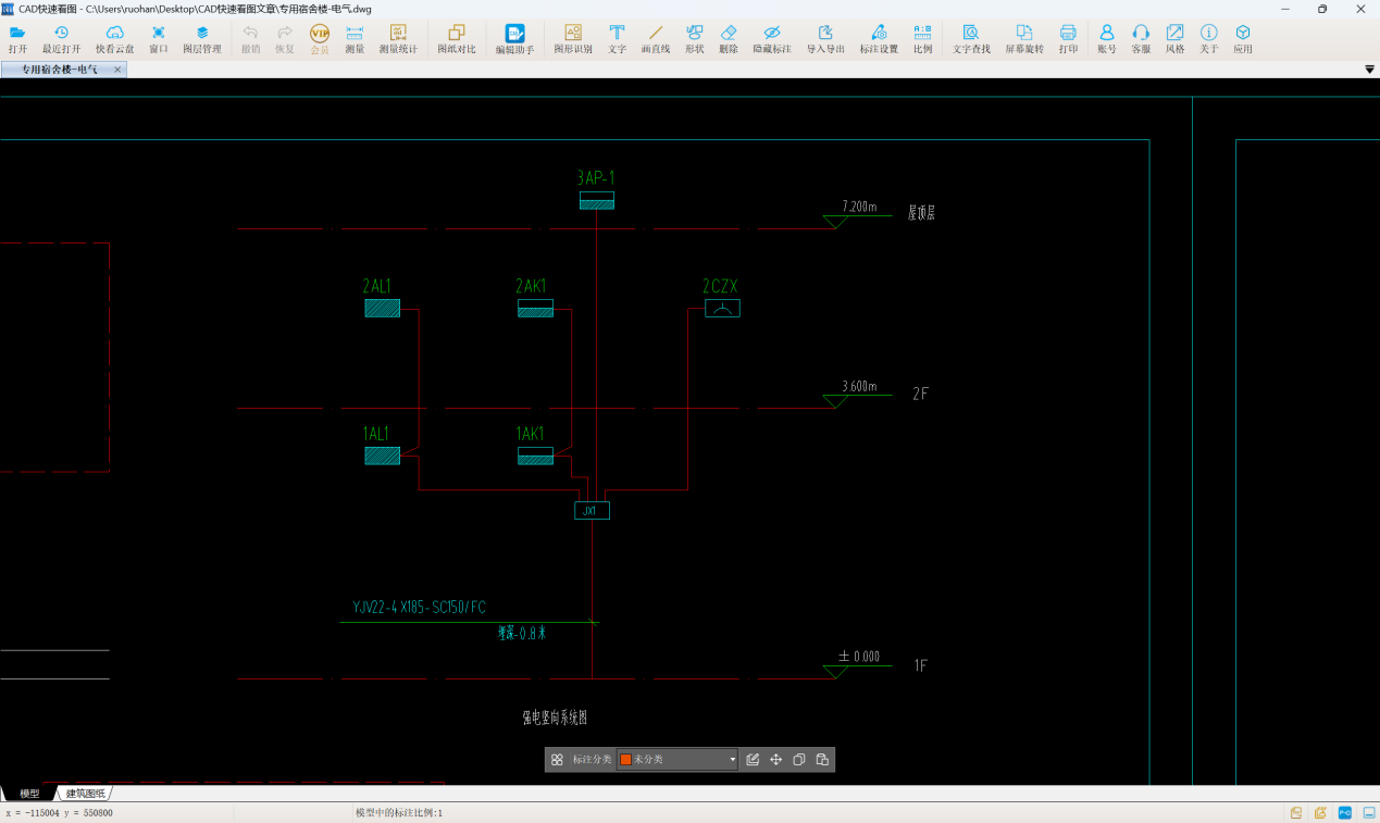
1.计算建筑图内的电缆工程量,观察配电箱统图和平面图,沿用“量长度”的思路处理。

2.用CAD快速看图查看图纸并计量
JX1的入户电缆为YJV22-4*185-SC150/FC,地下埋深0.8、穿镀锌钢管SC150暗敷。4芯截面185mm2,交联聚乙烯双钢带铠装电缆。计算其长度:3.2+1.5(电缆进入建筑物预留)+(0.8+1.5)(竖向长度)+(0.7+0.8)(配电箱预留:高+宽)=8.5m

JX1的出线电缆,通过桥架和配管进入各配电箱。对于1AL1~2AL1,为交联聚乙烯5芯电缆,4芯35mm2,1芯16mm2,桥架敷设。1AK1~2AK1,为交联聚乙烯5芯电缆,4芯50mm2,1芯25mm2,桥架敷设。3AP1,为交联聚乙烯5芯电缆,4芯50mm2,1芯25mm2,穿镀锌钢管SC65和桥架敷设。2CZX,为交联聚乙烯5芯电缆,5芯16mm2,穿镀锌钢管SC32沿墙面敷设。

在进行测量之前,进行标注分类管理:

以AL进线电缆为例分析,选择JX1-1AL1,2AL1,使用【连续测量】命令得到水平距离为26.667m,层高3.6m,桥架距顶0.7m,JX1离地1.5m、高0.8m、宽0.7m,AL1离地1.8m、宽0.5m、高0.6m。则电缆长度为26.667+(3.6-0.7-1.5-0.8)(JX1竖向长度)+(0.8+0.7)(JX1预留)+(3.6-0.7-1.8-0.6)(1AL1竖向长度)+(0.5+0.6)(1AL1预留)+(3.6-0.6)(2AL1竖向长度)+(0.5+0.6)(2AL1预留)=34.47m

同样的方法可解得其他配电箱进线电缆长度,此处不再赘述。
CAD快速看图在电力干线电缆计量过程中,连续测量一键计算轻松计算管线长度,分类管理便于后续检查核对。
#电缆#干线#连续测量#计量#电气
转载请注明来源本文地址:https://www.tuituisoft/blog/90587.html