消火栓管道工程量计算需要注意些什么?本文从管道界线划分规则切入,结合清单计量标准,利用CAD快速看图结合建筑图实操工程量计算全流程。
一、管道界线的划分
在工程量计算之前,首先需要确定室内外系统划分界线,在清单计量标准中,消火栓管道的室内外界线划分为:给水管道室内外界线划分应以外墙皮1.5m为界,入口处设阀门者应以阀门为界。

二、工程量计算规则
1.工程量计算:消火栓钢管按设计图示管道中心线以长度计算,不扣除阀门、管件及各种组件所占长度以延长米计算。
2.项目特征:安装部位,材质、型号、规格,连接形式,管道镀锌设计要求,压力试验及冲洗设计要求,管道标识设计要求等。
3.工作内容:管道及管件安装,管道镀锌,压力试验,冲洗,管道标识等。
三、实例分析
计算某建筑内的室内消火栓管道工程量,观察消火栓系统图和平面图,沿用“量长度”的思路处理,具体计量规则为:管长=水平长度+竖直长度。

1.明确材质、连接方式:从设计说明中找到关于消火栓管道材料描述,消火栓管道采用内外热浸镀锌钢管,DN>80为卡箍链接,其余螺纹连接。

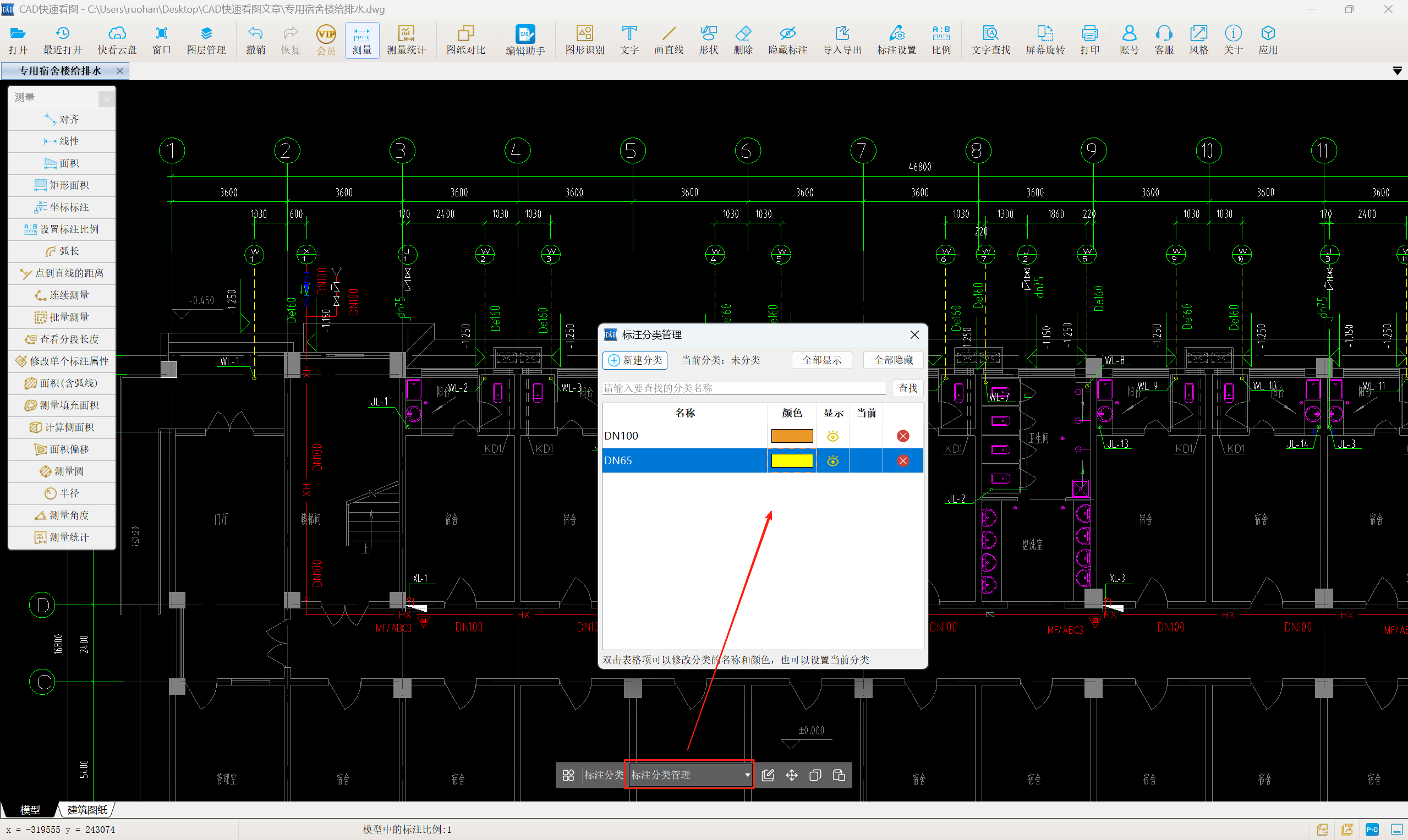
进入测量阶段,在CAD快速看图中,使用连续测量功能,得到各平面图中DN100和DN65两种规格的水平长度。
第一步在【标注分类管理】里新建该两种分类,选择适当的颜色。第二步在分类下拉选择栏里选择DN100。

第三步在平面图中使用【连续测量】功能,测出所有DN100水平长度。

第四步,切换分类为DN65,测出平面图中所有DN65长度。
第五步,使用【测量统计】功能,选择所有标注,勾选按颜色过滤和分类过滤两种模式,打开颜色选择框或者分类选择框,都可以进行工程量统计,分别得到DN100水平长度97.24m,DN65水平长度2.945m。


3.立管利用标高相减可得,DN100管长=3.6*4+[3.4-(-1.15)]*2=23.5m;DN65管长=(3.4-1.1)*4=9.2m。
4. 编制工程量清单

消火栓管道的工程量统计根据以上清单规范要求,同时结合CAD快速看图的连续测量与测量统计功能,高效完成工程量的计算。
转载请注明来源本文地址:https://www.tuituisoft/blog/90567.html