注:本文转载至“ 欧特克BIM俱乐部”公众号
Revit钢筋模型创建可以通过三种方式创建:
1. Revit自带的钢筋创建选项板
2. Revit速博包快速创建
3. Dynamo创建 今天给大家带来的是Revit自带钢筋创建选项版创建。
正如所言,Revit钢筋选项版的创建也是时代的产物,不光是结构梁、板、柱内的创建,还有里面的钢筋是怎么样的表现形式,怎么出钢筋量,这都是现在客户的需求,恐怕也是大家的需求吧,那么,接下来开始讲解Revit自带钢筋创建选项版创建。
绘制钢筋之前:
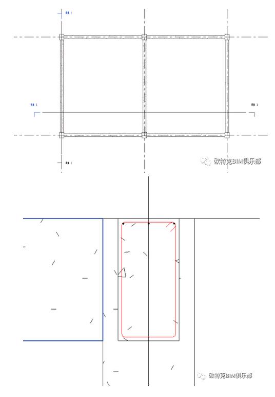
1. 提前画出如图所示的梁柱结构。
2. 提前将钢筋形状族载入至Revit中。
钢筋的可编辑状态:1. 结构平面 2. 立面 3. 剖面(最常用)
一、编辑梁的钢筋
首先设置钢筋的保护层厚度
可以复制和添加、修改,这个是后期钢筋主体建模的基础。
然后,我们开始绘制钢筋。
在这里,有三个放置平面,其中,第一个主要是在剖面中绘制使用。第二个近保护层参照绘制离你最近的主体面内内向远开始绘制,第三个,顾名思义,绘制离你最远的主体平面内向近开始绘制。
接下来需要做一个剖面图,体现钢筋的放置方向。


接下来,教大家如何修改钢筋的颜色。
钢筋的颜色由黑色变成红色,是不是很神奇。
在绘制钢筋中,交叉位置是有限制的,接下来讲解交叉位置的钢筋限制
镜像一下:

调至剖面图2:
在剖面2中继续绘制梁纵筋

转载请注明来源本文地址:https://www.tuituisoft/blog/479.html