首页/技术分享

Revit如何制作精细的符合对材料、尺寸、细部需求的窗框族(一)

发布于:2015-09-05 12:30:54
19347人 分享

先我先讲窗框在revit里如何来建立,看看revit是不是如我说的那样强大。注意,我这里不讲窗,因为窗一般来讲属于建筑设计的范畴,当然在很 多的第二次装修的时候,也是室内设计师的工作。也许CAD的高手们会说,画个窗框或者窗户那不是小菜一碟,对的,没错!但是,效率呢?花多少时间画?是不 是可以像revit一样,一个窗框的族建立了以后,变化一下数字就可以永久使用?可以以不变应万变?不讲万变吧,谦虚点,说千变。说明一下,我这里所讲的 都是针对要求精确建模或精确制图的,如果说业主方没有这么高要求,如家装只要嘴上说说就行了,那就不要学revit了。

在讲窗框族建立之前,我们先看一下我们在建立窗框族时我们需要解决什么问题?

1.完成后窗户的大小的变化;

2.窗台的高低的变化;

3.窗台的厚度变化

4.窗台的深度和跨度的变化;

5.窗框距窗扇的深度变化;

6.窗框材料的变化;

7.窗框材料厚度的变化;

8.窗框的宽度变化;

9.窗框突出墙面的缝隙变化;

10.窗框衬底材料的填充变化;

11.窗框衬底材料的厚度变化,包括衬底材料厚度左右不对称变化;

12.随着所有上述任何一点参数的变化,其它跟着相应变化;

13.自动平立面出图;

14.任意角度的三维草图生成;

15.任何角度的三维效果渲染;

16.可以随变化生成材料表;

加上在revit的项目模型中,随着窗框族的导入,窗户在墙体上应任意精确数字变化而变化。另外必须随着项目模型的生成,而生成材料的统计,成本的统计等等。

下面我们来讲解一下制作过程

1. 点击revit的“新建”按钮,进入族模块。

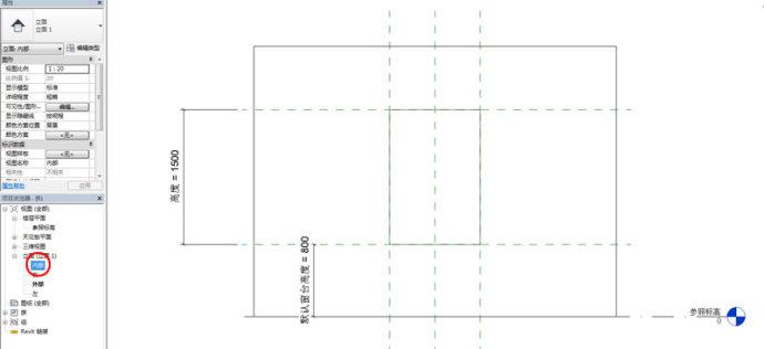
2. 打开公制窗模块;

平面

立面

3.打开族类型对话框,我们会看到有三组数字,高度、宽度、默认窗台高度,注意这三组数字在室内设计上来讲只是代表了墙体上窗洞的尺寸,室内装修就是 在这原点上开始,加上衬底、表面饰板、窗框、窗台板等完成后,尺寸就完全不一样了。这里的工作就是要把我们在室内装修中绝大部分在制作窗框中遇到的问题或 要想设计的窗框类型用数字在这族类型表中表达出来。

4. 首先我们先把衬底做出来,衬底从目前来讲,我们会选择木工板、密度板、多层板、刨花板等等,由于施工项目中,窗洞的尺寸和位置形状等和我们设计的要求会有 偏差,如墙有厚薄之别,窗扇在墙内外侧的什么位置,窗扇左右有没有偏差校正等等。所以要求衬板上下左右的厚度和深度都能进行调整。在revit中我们用 “创建"中的“拉伸”命令。用“矩形”工具在参照平面上画一个矩形,锁住关联。

5. 在偏移量中填写“-20”拉出衬板的厚度。

6. 用“尺寸标注”工具标出每一条边框的尺寸。

7. 点击“尺寸标注”,然后点击菜单栏中的“标签”对话框,选择添加参数,在对换框中填入“衬板上厚度”,同理分别填入“衬板下厚度”、“衬板左厚度”、“衬板右厚度”,这样衬板每一条边的厚度设定完毕。测试一下分别给每一条变填入参数后的变化。

8. 按确认键退出。然后进入"楼层平面"的“参照标高”,出现下图。

9. 点击衬板,然后适当地往外墙方向拉一点,这样以便于设定标签参数。

10.这里要设定二个参数,一个是伸进墙体尺寸,为的应付窗体位置在墙中变化。另外一个抛出墙体尺寸,为的是应付有时设计上要求对涂料、墙纸、饰面材料的收口。我这里把内墙线作为作为尺寸基线来添加尺寸参数,然后点击一下族类型测试一下变化。

11. 在“属性”中添加材料属性,然后进入“族类型”添加材料,按“确定”。这样衬板就完成了。

转载请注明来源本文地址:https://www.tuituisoft/blog/121.html

上一篇:

实例讲解:Revit幕墙竖梃族创建流程(LOD300)

下一篇:

Revit族参数类型之结构族参数类型有哪些?